Skocz do zawartości

klaszu

Uczestnik
  • Posty

    4
  • Dołączył

  • Ostatnio

klaszu's Achievements

Początkujący

Początkujący (1/4)

0

Reputacja

  1. Wszystko jasne. Dzięki
  2. Przepraszam, że dopiero teraz odpisuję. Na ściaę będą kladzione plyty tzw. kartongips. Pytałam ekipę remontową czy w zwiazku z tym muszę się tej farby pozbyc i stwierdzili, że tak. Chciałam sama się tym zająć, dobrze, że zapytałam, bo nie wiedziałam, że są inne sposoby niz walka ze szpachelką Podejrzę na YouTube, na pewno tam ktoś pokazał co i jak. Ale i tak dzięki
  3. Dobry wieczór, jestem przed gruntownym remontem i chciałam w tym celu sama przygotować ściany. Mogę liczyć na podpowiedź czym najlepiej skuć taką olejną farbę? Próbowałam szpachelką i młotkiem, ale to jakaś udręka...
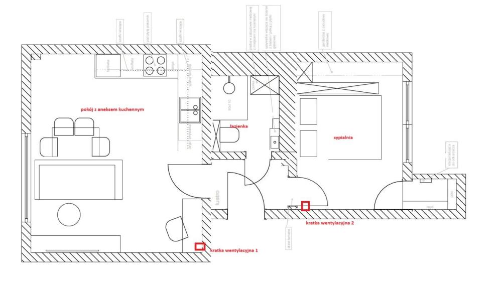
  4. Dobry wieczór, jestem nowa na forum, niezbyt obeznana, także z góry dziękuję za wyrozumiałość. Mam do wyremontowania mieszkanie, powierzchnia 39m2, aktualnie z rozkładem: pokój (z lewej), łazienka po środku i kuchnia z prawej. Załączone zdjęcie to układ funkcjonalny pani projektantki. Planuję podgrzewać wodę piecykiem gazowym, zlokalizowanym w łazience (dotychczas był bojler elektryczny) i przenieść aneks kuchenny do salonu. Jestem po spotkaniu z kominiarzem, który wyznaczył mi komin, do którego mogę podpiąć junkers w łazience i temat jest dla mnie zrozumiały. Problem pojawia się przy montażu płyty gazowej. Mianowicie, Pan dodał, że jest jakiś przepis, który nie pozwala na montowanie kuchenki gazowej w aneksie kuchennym, bo domyślnie jest to pokój użytkowy (użył argumentu, że przebywa się w nim dłużej niż 4h, a niby w osobnej kuchni mniej niż 4h i to jest ta różnica. Jeżeli coś mylę to przepraszam). Co prawda wyznaczył mi wentylację w tym pokoju (kratka nr 1) i dodał, że mogę tę kuchenkę tam zamontować, ale raczej na własną odpowiedzialność. Chciałabym się wcześniej upewnić, co do tych zapisów? Czy faktycznie coś takiego istnieje? Zapytałam go tak o, czy w ramach kontroli gazowej, którą on sam przeprowadza co rok, podważyłby tę płytę, powiedział, że ON nie, ale ktoś inny mógłby mieć "ale". Nie rozumiem z tego już nic :>
×
×
  • Utwórz nowe...